• darkblurbg
    Welkom bij Euro-House Makelaar
    Hoşgeldiniz Euro-House Emlak
    Welcome to Euro-House Real-Estate
  • darkblurbg
  • darkblurbg
  • darkblurbg

Melis Stokezijde 170, 2543 GK Den Haag

Vraagprijs € 275.000.- k.k. Ruim en licht 3-kamer hoek appartement met twee balkons, eigen berging en gratis parkeren. Gelegen in een groene, rustige wijk nabij Kijkduin en Madestein. Direct te betrekken! Een ruim, licht en comfortabel hoek appartement met twee balkons, eigen berging en gratis parkeren op eigen terrein. Ideaal voor starters, senioren en expat die rustig willen wonen maar toch centraal gelegen zijn.

Locatie & omgeving:
• Groene, rustige wijk met parkachtige uitstraling
• Nabij natuurgebieden De Uithof, Madestein en Kijkduin
• Dichtbij winkels: Leyweg, Stede, Ambachtsgaarde, Wateringen
• Goede OV-verbindingen: bus 25, tram 9
• Snelle uitvalswegen: A4 en A13


Omschrijving:

Op zoek naar een licht en ruim 3-kamer appartement in een groene, rustige wijk? Dit royale hoek appartement biedt twee balkons, eigen berging en gratis parkeren op eigen terrein. Alles binnen handbereik en direct te betrekken!

Indeling & highlights:
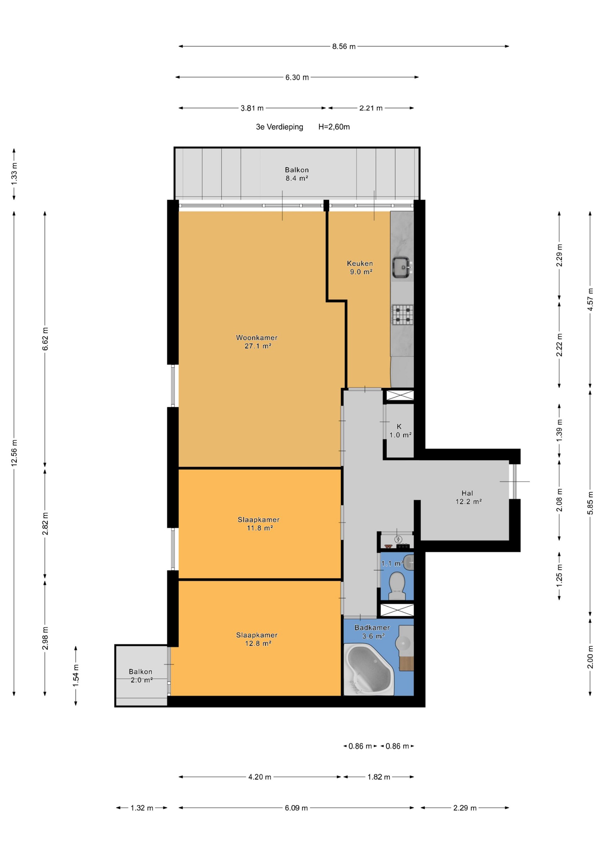
• 3e verdieping van kleinschalig, goed onderhouden complex met lift
• Lichte woonkamer (ca. 27 m²) met toegang tot voorbalkon (ca. 8,4 m²)
• Moderne dichte keuken met wandopstelling, 1,5 spoelbak, onder- en bovenkasten
o Aansluitingen voor wasmachine, vaatwasser en koel-vriescombinatie
o Toegang tot tweede balkon
• Slaapkamer 1: ca. 12 m²
• Slaapkamer 2: ca. 13 m² met toegang tot balkon
• Moderne badkamer met halfronde ligbad en wastafelmeubel
• Separaat toilet met fontein
• Eigen berging (ca. 6 m²) op de begane grond
• Parkeren op eigen terrein (niet-betaald)
* Zie ook plattegrond.

Bijzonderheden:
• Bouwjaar: ca. 1978
• Gebruiksoppervlakte wonen: ca. 81 m²
• Energielabel: E
• Actieve gezonde VvE: bijdrage ca. € 393,94 p/m (incl. stookkosten, water, opstalverzekering)
• Erfpacht t/m 31-12-2030; huidige canon € 1,13 p/jaar – heruitgifte aangevraagd bij gemeente
• Houten en aluminium kozijnen (enkel glas)
• Ouderdoms- en materialenclausule van toepassing
• Intern naar eigen smaak te moderniseren
• Oplevering: per direct mogelijk!
* Projectnotaris Lont te Den Haag.

Bezichtiging:
• Op afspraak mogelijk op zaterdag
• Contact via email of telefonisch om een rondleiding te plannen. “Mis deze kans niet! Neem vandaag nog contact op voor een bezichtiging op afspraak en ontdek uw nieuwe thuis.”

De Meetinstructie is gebaseerd op de NEN 2580 van firma FOTOZOOM b.v. De Meetinstructie is bedoeld om een meer eenduidige manier van meten toe te passen voor het geven van een indicatie van de gebruiksoppervlakte.
De Meetinstructie sluit verschillen in meetuitkomsten niet volledig uit, door bijvoorbeeld interpretatieverschillen afrondingen of beperkingen bij het uitvoeren van de meting. Deze informatie is geheel vrijblijvend, uitsluitend voor geadresseerde bestemd niet bedoeld als aanbod. Ten aanzien van de juistheid van de vermelde informatie kan door EURO-HOUSE o.g. makelaars geen aansprakelijkheid worden aanvaard, noch kan aan de vermelde informatie enig recht worden ontleend. Onzerzijds wordt echter geen enkele aansprakelijkheid aanvaard voor enige onvolledigheid, onjuistheid of anderszins, dan wel de gevolgen daarvan. Alle opgegeven maten en oppervlakten zijn indicatief.

 Reageer op deze woning